Skip to content
Torrance: (310) 539-9902 | Irvine: (949) 428-0260
Don Wilson Builders
Orange County and Los Angeles Real Estate Management
Home
About Us
Our History
Our People
Internships
Residential
Calle Mayor Apartments
Park Vista South Apartments
Woodlake Apartments
Moonraker Apartments
Commercial
Goodyear Business Park
Pacific Park Plaza
Journey Business Park
Brookhollow Business Park
Town Center Business Park
Marble Park Investments
Marble Park III
Current Projects
Scorpion Bay
Carson Property
Cambria Court
Carson Court
Pacific Gateway II
Contact
Home
About Us
Our History
Our People
Internships
Residential
Calle Mayor Apartments
Park Vista South Apartments
Woodlake Apartments
Moonraker Apartments
Commercial
Goodyear Business Park
Pacific Park Plaza
Journey Business Park
Brookhollow Business Park
Town Center Business Park
Marble Park Investments
Marble Park III
Current Projects
Scorpion Bay
Carson Property
Cambria Court
Carson Court
Pacific Gateway II
Contact
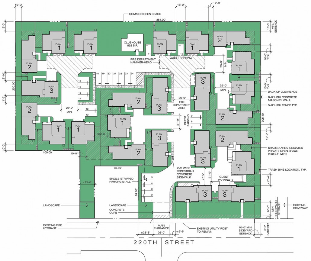
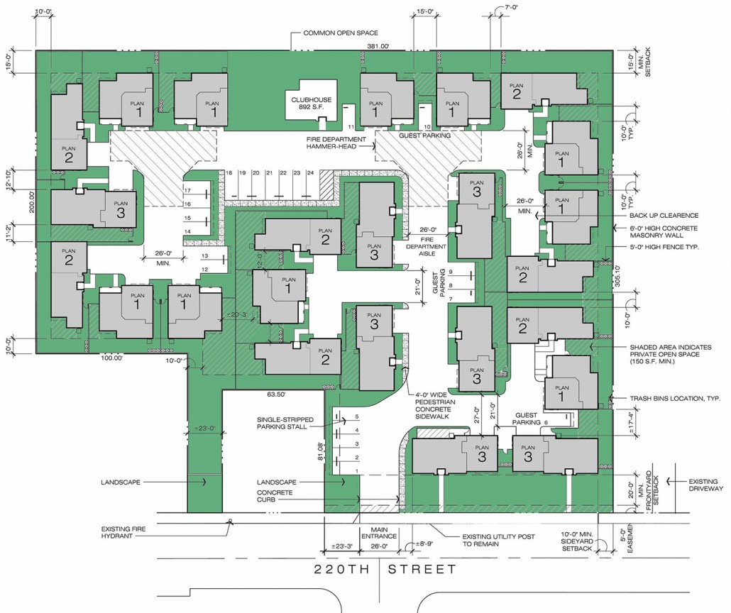
Carson Property
Carson, CA
The Carson project is an infill project which required the assemblage of various properties resulting in a site plan being designed to include 24 single family lots. The property is currently in the planning/entitlement stage.
Leasing Contact:
Location:
Go to Top